Rotate to exit fullscreen mode

  • Palazzina Maresa 03

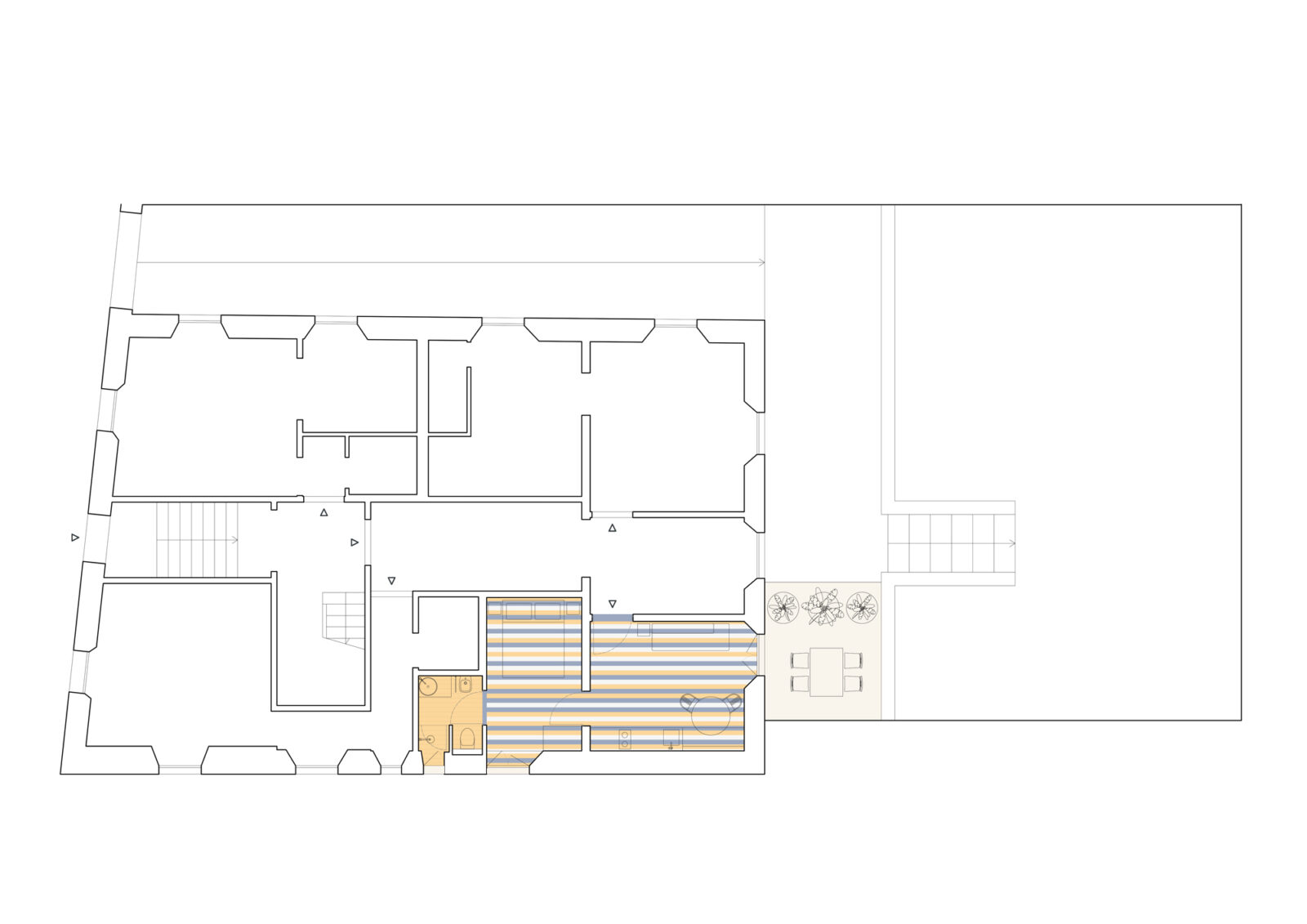
    In Florence’s Porta Romana neighbourhood, an early 20th-century building has been restored and renovated by eight young Florentine creatives, with a view to reinterpreting the spirit of the building’s foundation in a contemporary key. AFSa‘s proposal revisits the aesthetics of the 1920s through the suggestions of Adolf Loos’s Ornament and Crime, creating a refined and sensual atmosphere in which the polychrome marble floor plays a leading role. The flooring design, which contrasts 12 cm strips in Bianco di Carrara, Giallo di Siena and Bardiglio, recalls both the Romanesque tradition of marble bands in Florence and Gio Ponti’s iconic ceramics for Richard Ginori. The motif defines the style of the custom-designed furnishings, balancing homogeneity and contrast throughout the space.

    Client: Palazzina Maresa
    Year: 2023-2024
    Location: Firenze, Italia
    Dimension: 29 mq
    Team: AFS(Antonio Acocella, Pietro Seghi)
    Collaborators: Margherita Serdino
    Contractors: 2P, ISQ, Malte storiche, Marble&More, Ruben Casola Mestiere, Termozac
    Suppliers: Combinat, Egoluce, Treemme
    Photos: Lorenzo Zandri