Rotate to exit fullscreen mode

  • Primary school Cesenatico

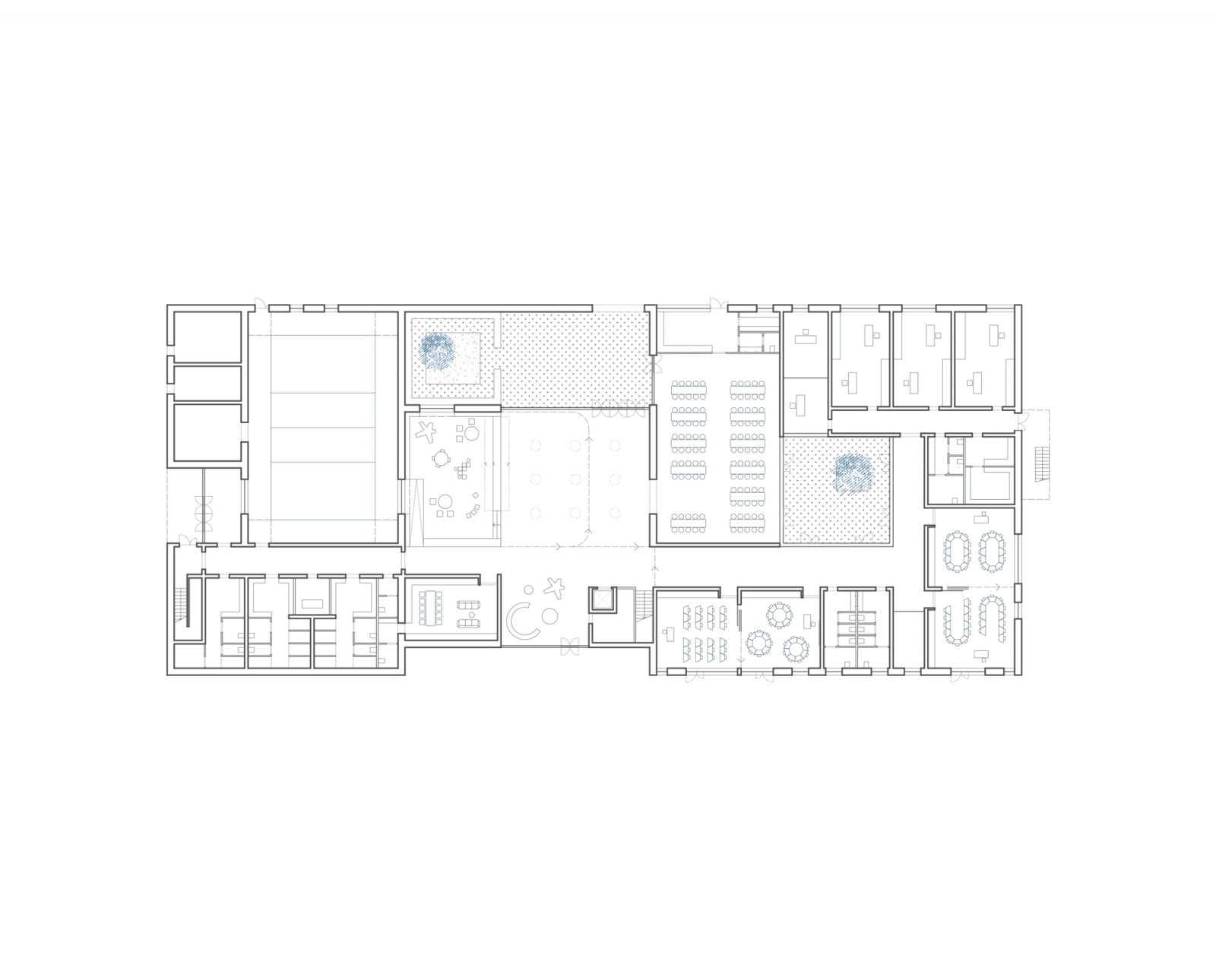
    The concept of the building is based on the combination of masses and voids, containers of indoor and outdoor activities. A simple formal exercise, as a child’s game, which has its sculptural accent in the sheds covering the gym.
    The new school is characterised by a sober aesthetics, aimed at hosting and catalysing the educational, recreational and social requests of the local community.

    Client: Comune di Cesenatico
    Year: 2018
    Location: Cesenatico, Italy
    Team: AFSa (Antonio Acocella, Alessandro Falaschi, Pietro Seghi)