Casa Amari
Collocata in un edificio d’angolo nel quartiere di Campo di Marte, Casa Amari dialoga con il paesaggio circostante attraverso ampie aperture che inquadrano le chiome degli alberi del parco sportivo e le pendici di Monte Ceceri.
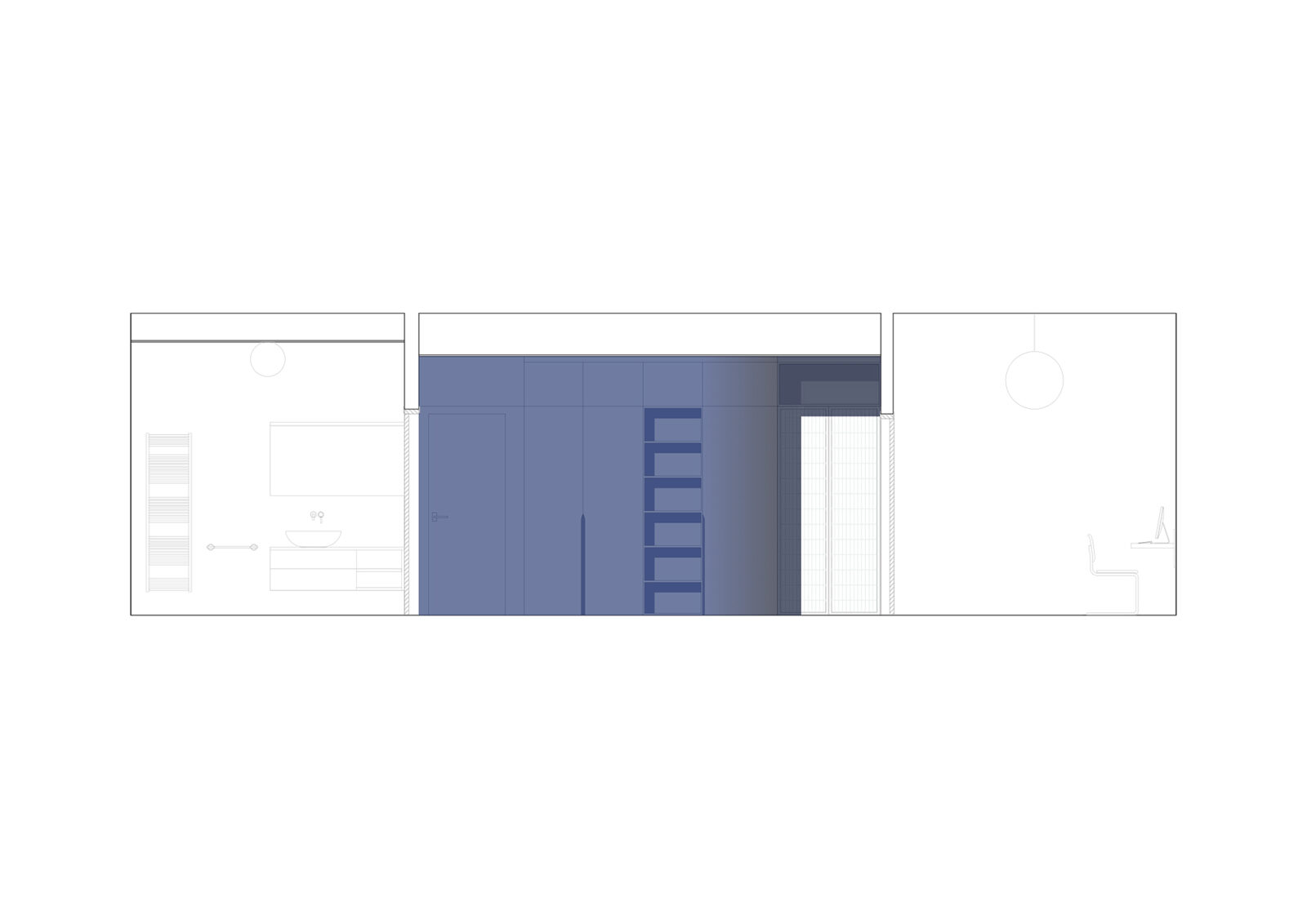
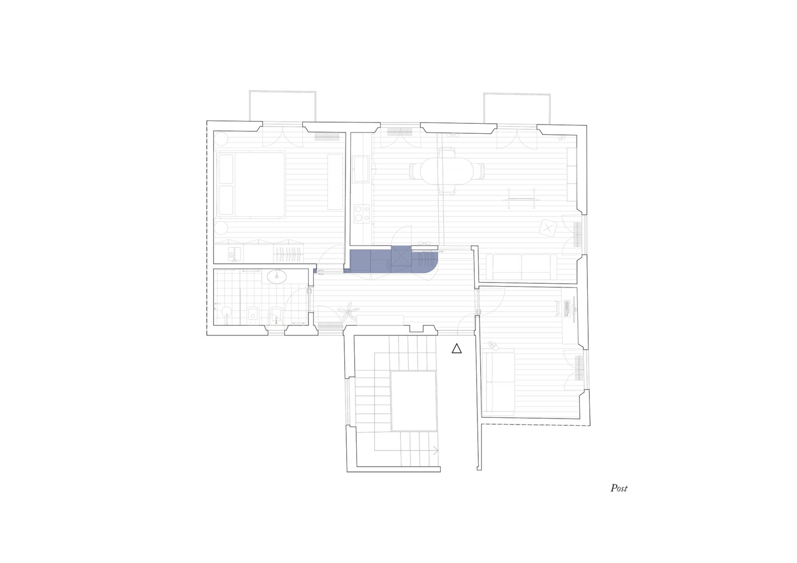
Il progetto, concepito per il nuovo proprietario, rielabora la suddivisione interna originaria – rimasta invariata dall’epoca della costruzione – alleggerendone i volumi e introducendo una parete attrezzata che racchiude impianti e spazi di servizio, garantendo continuità e pulizia formale.
Una palette sobria, dominata dal blu, dal nero e dal legno di quercia della pavimentazione, unifica gli ambienti, mentre arredi essenziali accolgono con discrezione oggetti personali, memorie di viaggi e riferimenti culturali.
Cliente: Privato
Anno: 2023-2024
Luogo: Florence, Italia
Dimensione: 70 mq
Team: AFSa (Antonio Acocella, Pietro Seghi)
Collaboratori: Margherita Serdino
Imprese: Dante Maggesi, Falegnameria Paolo Meoni, Vetreria Romei
Fornitori: TaniniHome, Zucchetti, Grandinetti, Veneta Cucine, Illux
Fotografia: Sofia Lalli