Rotate to exit fullscreen mode

  • Cineca Campus

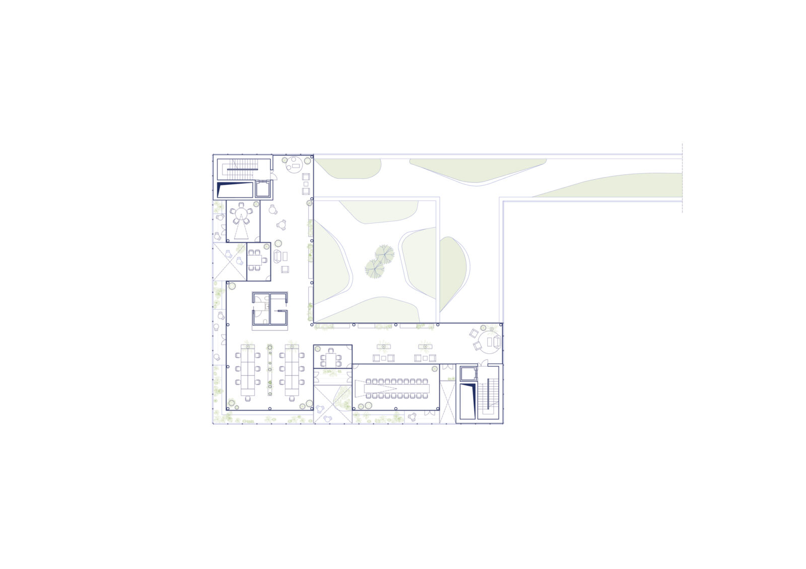
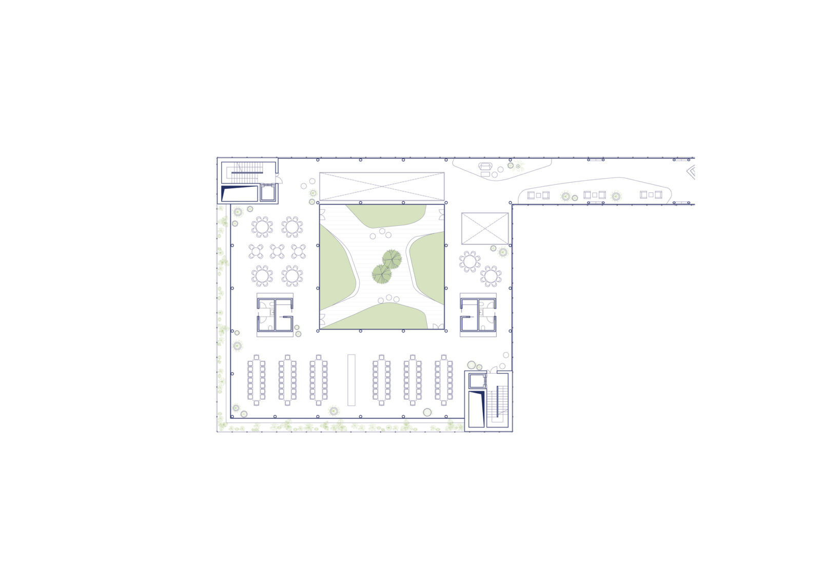
    Il nuovo “Campus Cineca” si manifesta attraverso un’architettura iconica, razionale e sostenibile inserita all’interno di un nuovo parco ad uso dei dipendenti dell’intero Campus. La progettazione è stata guidata dall’idea di creare spazi condivisi e ambienti lavorativi innovativi. Un edificio direzionale moderno concepito tenendo conto delle esigenze delle persone, che si traducono in necessità legate allo spazio e al tempo. Il nuovo Campus si configura come una vera e propria infrastruttura blu/verde articolata su più livelli, dal piano terra – dove il nuovo parco car free si pone in continuità con le strade di quartiere – alle terrazze in quota, dove si configurano spazi più “privati”. Il verde penetra l’edificio attraverso l’involucro a doppio pelle dell’edificio, all’interno del quale piante autoctone trovano ideale luogo di crescita.

     

    Cliente: Cineca Consorzio Interuniversitario 
    Anno
    : 2024
    Luogo: Casalecchio di Reno (BO), Italia
    Progetto architettonico
    : AFSa (Antonio Acocella, Pietro Seghi) + OPPS (Francesco Polci, Antonio Salvi, Paola Chiriatti)
    Collaboratori: Tommaso Vangi, Camilla Bazzani, Frida Sandhel (AFSa) + Davide Ferrera, Jill Fehr (OPPS)