Rotate to exit fullscreen mode

  • Dreifachturnhalle Davos Platz

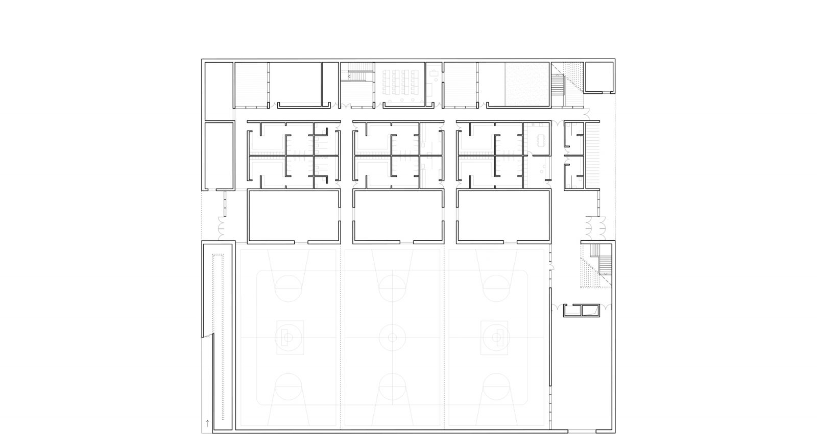
    L’edificio per la nuova palestra è articolato attraverso tre elementi dalla forte valenza architettonica e urbana: un basamento, che perimetra tutte le funzioni richieste dal programma e involucra l’impiantistica e i servizi; una lanterna, volume leggero e trasparente che chiude verticalmente la palestra e svolge il ruolo di signal del campus; una terrazza, luogo di gioco a cielo aperto e di intersezione tra i vari flussi della comunità scolastica.
    Il volume della palestra, collocato al centro del lotto, forma con gli edifici delle scuole esistenti una sequenza di vuoti e di pieni volta a non ostacolare l’irraggiamento solare e la vista degli edifici prospicenti verso le montagne.

    Cliente: Gemeinde Davos
    Anno: 2018
    Luogo: Davos, Svizzera
    Progetto architettonico: AFSa (Antonio Acocella, Alessandro Falaschi, Pietro Seghi) + OPPS (Filippo Pecorai, Francesco Polci, Antonio Salvi)
    Progetto strutturale: Marco Cherici
    Collaboratori: Federica Bresin, Alexander Palagano
    Immagini: Prospettica