Rotate to exit fullscreen mode

  • Recupero Ex Convento Carmelitani Scalzi Lecce

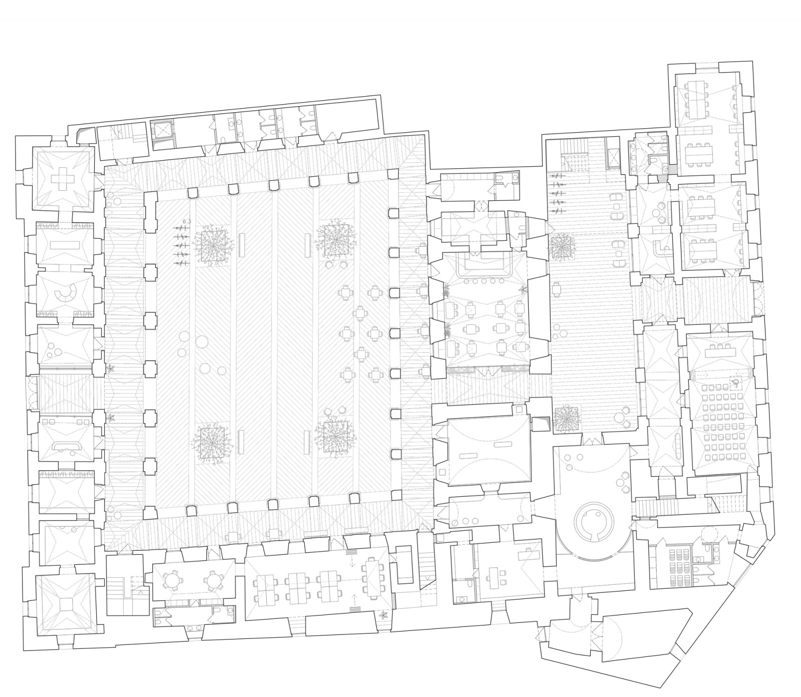
    Nel rispetto del programma architettonico e della consistenza dell’immobile, il progetto si articola secondo un crescente livello di privacy: alla quota della città, si trovano le funzioni pubbliche e collettive; al piano superiore, gli spazi di pertinenza esclusiva degli studenti.
    Le funzioni assecondano l’impianto distributivo anulare consolidatosi nel tempo e rispettano la conformazione volumetrica dei locali evitando di intaccare le superfici voltate e massimizzando lo sfruttamento dei cavedi esistenti. L’altezza significativa dei vani permette di prevedere locali soppalcati e alloggi duplex per la destinazione residenziale.
    Gli interventi di demolizione previsti sono concentrati sulle superfetazioni realizzate nel corso del Novecento, ai fini di chiudere il terrazzo e di mettere in comunicazione
    alcuni locali. Gli interventi dichiaratamente in addizione alla preesistenza storica sono il nuovo volume affacciato sul chiostro, e il corpo scala/ascensore esterno nel cortile. Nel chiostro, la scansione dei vuoti e dei pieni del prospetto ricostruito, per quanto concerne quello che un tempo era il terrazzo sopra il loggiato, ripete i ritmi del sottostante portico e recupera le misure delle aperture preesistenti al piano.
    Intonaco tradizionale, pietra leccese e ottone brunito descrivono la palette materica architettonica dell’intervento.

    Cliente: ADISU PUGLIA (Agenzia per il Diritto allo Studio Universitario)
    Anno
    :  2022
    Luogo: Lecce, Italia
    Progetto architettonico: AFSa (Antonio Acocella, Pietro Seghi)
    Progetto strutturale: AEI progetti
    Progetto impiantistico: CONSILIUM (Leonardo D’Inzeo)
    Geologo: Terra e Opere (Gabriele Paolini)
    Restauratore:
     Stefano Landi 
    Collaboratori: Clemente Nativi, Francesco Martella, Arianna Colombo
    Immagini: Marco Petretti
    Video: Lapo Tirelli
    Premio: Quarto premio, concorso in due fasi