Rotate to exit fullscreen mode

  • MONOGRID Digital Boutique Agency

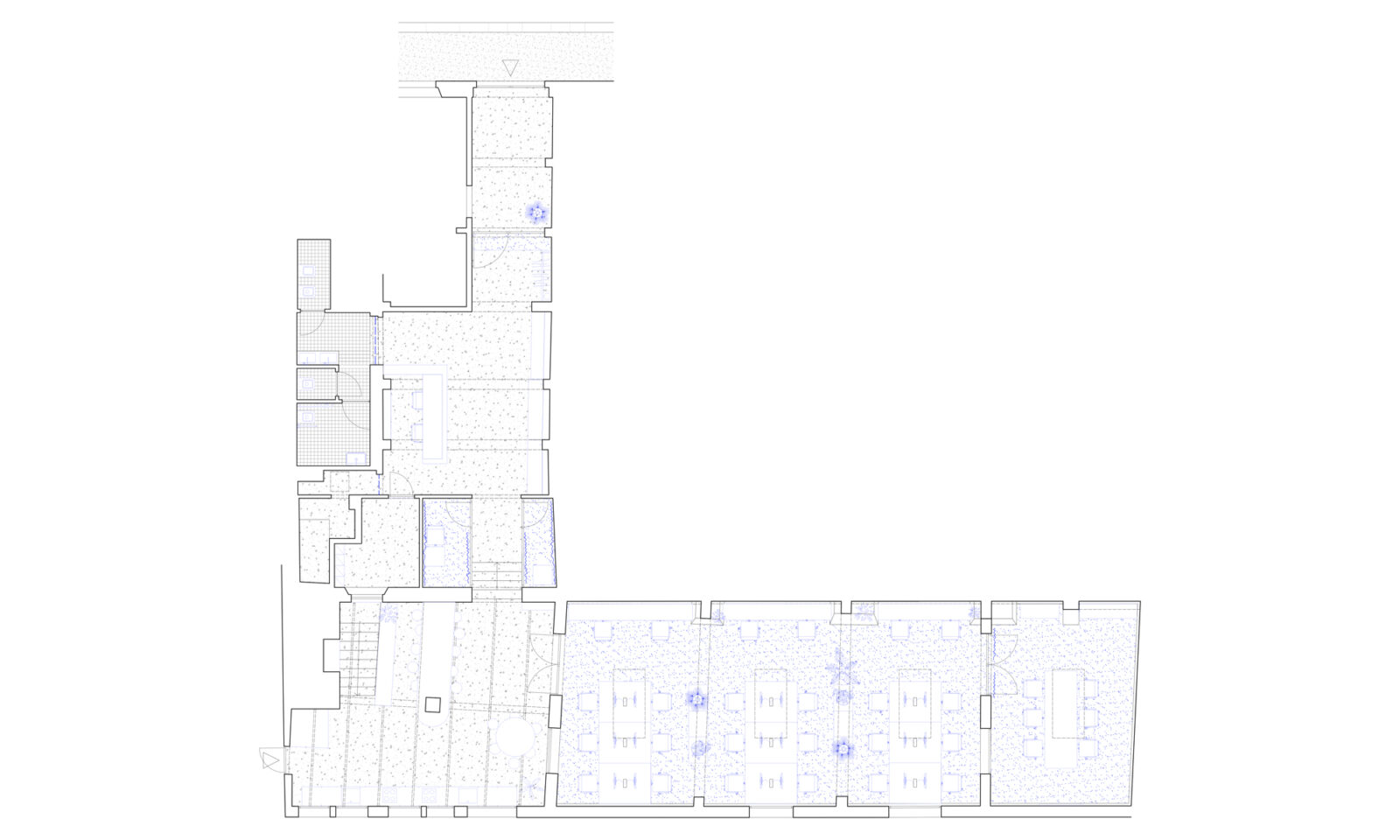
    Il progetto riguarda l’ampliamento della sede di Monogrid, situata in via Vittorio Emanuele II a Firenze, all’interno di una ex fabbrica di materassi. La precedente destinazione artigianale del luogo contribuisce a creare spazi ibridi dove creatività e tecnologia, tratti distintivi dell’agenzia, si fondono in un ambiente caratterizzato da una palette cromatica vivace e dall’uso di molteplici materiali.
    L’ingresso accoglie i visitatori e li indirizza, attraverso una breve rampa di scale, allo spazio ricreativo dell’ufficio, punto centrale sia dal punto di vista funzionale che distributivo. Una serie di aperture circolari collega visivamente le diverse sezioni dell’ufficio, creando un gioco di rimbalzi visuali tra elementi in acciaio satinato, superfici specchianti, microcemento e superfici smaltate con i colori aziendali.
    Gli uffici, distinti volumetricamente, sono illuminati da luce zenitale diffusa proveniente dalla copertura a falda. La pavimentazione in moquette, gli arredi in ferro e multistrato di betulla e l’illuminazione artificiale conferiscono agli spazi un’atmosfera calma e confortevole, perfetta per stimolare la produttività e il benessere dei dipendenti.

    Cliente: MONOGRID s.r.l.
    Anno: 2023-2024
    Località: Firenze, Italia
    Dimensione: 400 mq
    Team: AFS(Antonio Acocella, Pietro Seghi)
    Collaboratori: Francesco Martella
    Imprese: BS Building Solutions, Idealforme 2000, GE.SI. Impianti, Malte Storiche, Technosolar, Vetreria Romei, Ditta Modi Giannelli
    Fornitori: Martinelli Luce, TaniniHome, Zucchetti, CE.SI. Ceramica di Sirone S.r.l., Tarkett, Velux, Finestreitalia, Kerakoll, Hay, Moab
    Fotografia: Nicolò Panzeri