Palermo Scuola Sud
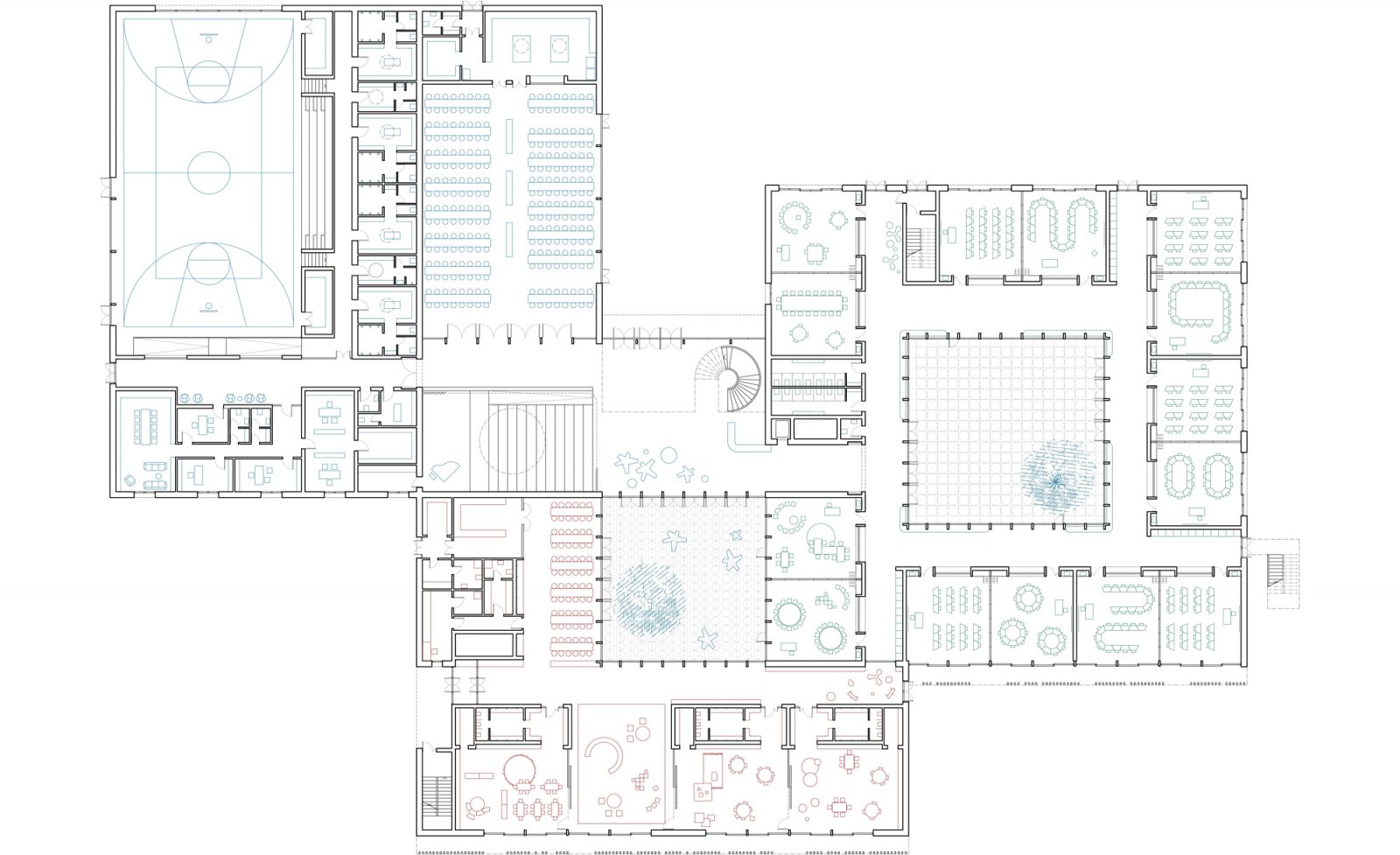
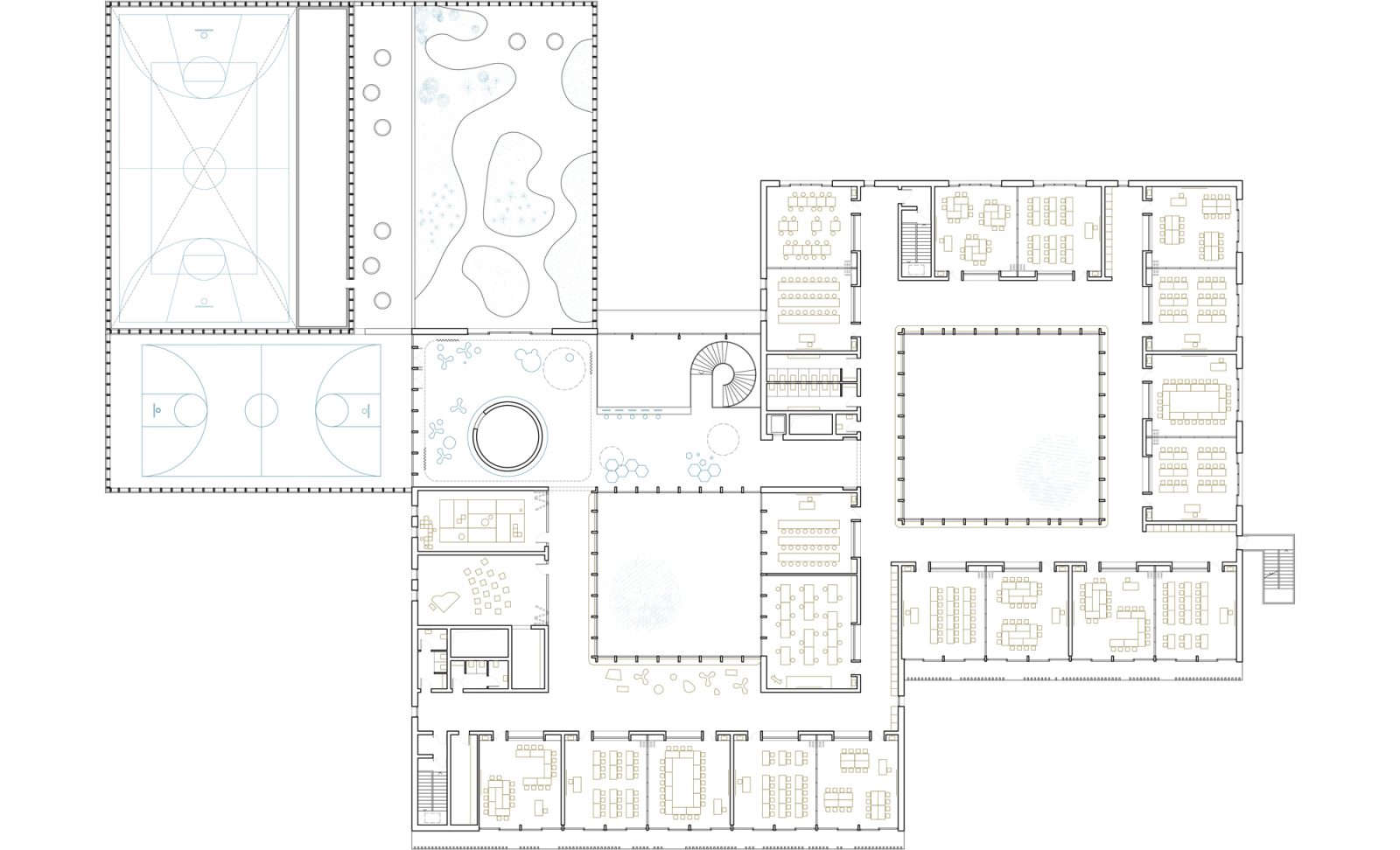
La volumetria di progetto nasce dall’intersezione di tre volumi a pianta quadrata, assemblati mediante una logica chiara, funzionale e flessibile.
Due dei tre volumi sono svuotati da corti aperte al cielo, attorno alle quali si articolano, al piano terra, gli spazi della scuola dell’infanzia ed elementare e, al piano primo, della scuola media; il terzo quadrato ospita, alla quota d’accesso, le funzioni collettive (mensa, palestra con relativi servizi e area amministrativa), mentre alla quota del primo livello si trovano un campo da gioco e un giardino didattico a cielo aperto.
Un’architettura fatta di materiali naturali, con struttura in pannelli di legno a tavole incrociate, infissi in legno e rivestimento esterno realizzato in pannelli prefabbricati finiti ad intonaco in diversi toni del bianco, tesi a conferire all’architettura un’identità mediterranea contemporanea.
Cliente: Comune di Palermo
Anno: 2017-2018
Luogo: Palermo, Italia
Progetto architettonico: AFSa (Antonio Acocella, Alessandro Falaschi, Pietro Seghi)
Progetto strutturale: AEI progetti (Niccolò De Robertis)
Progetto impiantistico: M&E (Stefano Mignani), Giacomo Talluri
Collaboratori: Federico Cadeddu, Edoardo Cresci, Federico Falaschi, Olivia Falsini
Immagini: Prospettica
Premio: Terzo premio, concorso in due fasi
Pubblicazione: area