Rotate to exit fullscreen mode

  • Scuola Primaria Grigoletti Pordenone

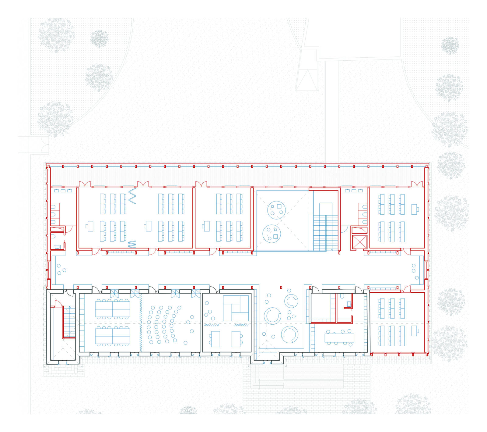
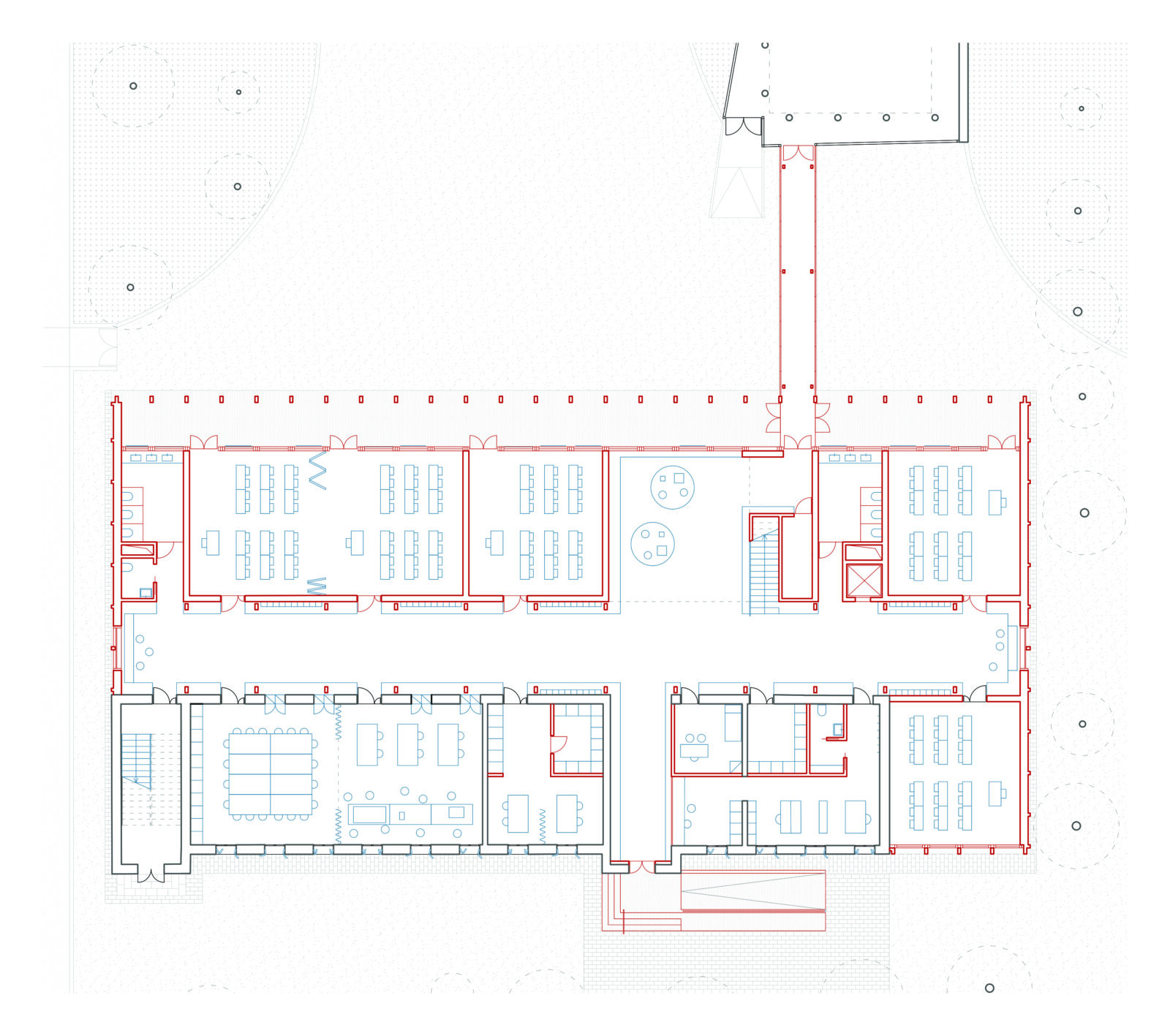
    Il progetto valorizza il nucleo storico della scuola, eliminando le superfetazioni e ripristinando l’ingresso originale. I nuovi volumi si incastrano attorno all’edificio esistente, riprendendone morfologia e proporzioni, con una copertura segmentata che crea continuità tra antico e nuovo. L’ingresso è ridefinito da un podio con rampa e seduta, integrando accessibilità e socialità. Gli spazi interni sono distribuiti assialmente, con atrio a doppia altezza e aule flessibili, collegate da percorsi attrezzati. Il fronte ovest è un portico su due livelli, mentre l’involucro riprende il ritmo dell’edificio storico, con struttura in legno lamellare a basso impatto ambientale.

    Cliente: Comune di Pordenone
    Anno
    : 2024
    Luogo: Pordenone, Italia
    Progetto architettonico
    : AFSa (Antonio Acocella, Pietro Seghi) + OPPS (Francesco Polci, Antonio Salvi, Paola Chiriatti)
    Collaboratori: Tommaso Vangi, Frida Sandhel, Alessio Solari (AFSa) + Davide Ferrera (OPPS)