Rotate to exit fullscreen mode

  • Casa PvS

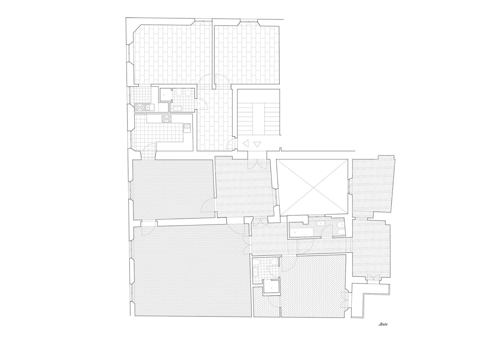
    Il progetto ristabilisce la consistenza originaria di un appartamento affacciato sulla chiesa di Santo Spirito nel centro storico fiorentino, alterato negli anni da frazionamenti, modifiche e usura. L’intervento consiste in una totale revisione del layout della casa, diretto a soddisfare le esigenze dell’abitare contemporaneo di una giovane famiglia, in parallelo al consolidamento e restauro delle strutture del fabbricato storico in cui è inserito.
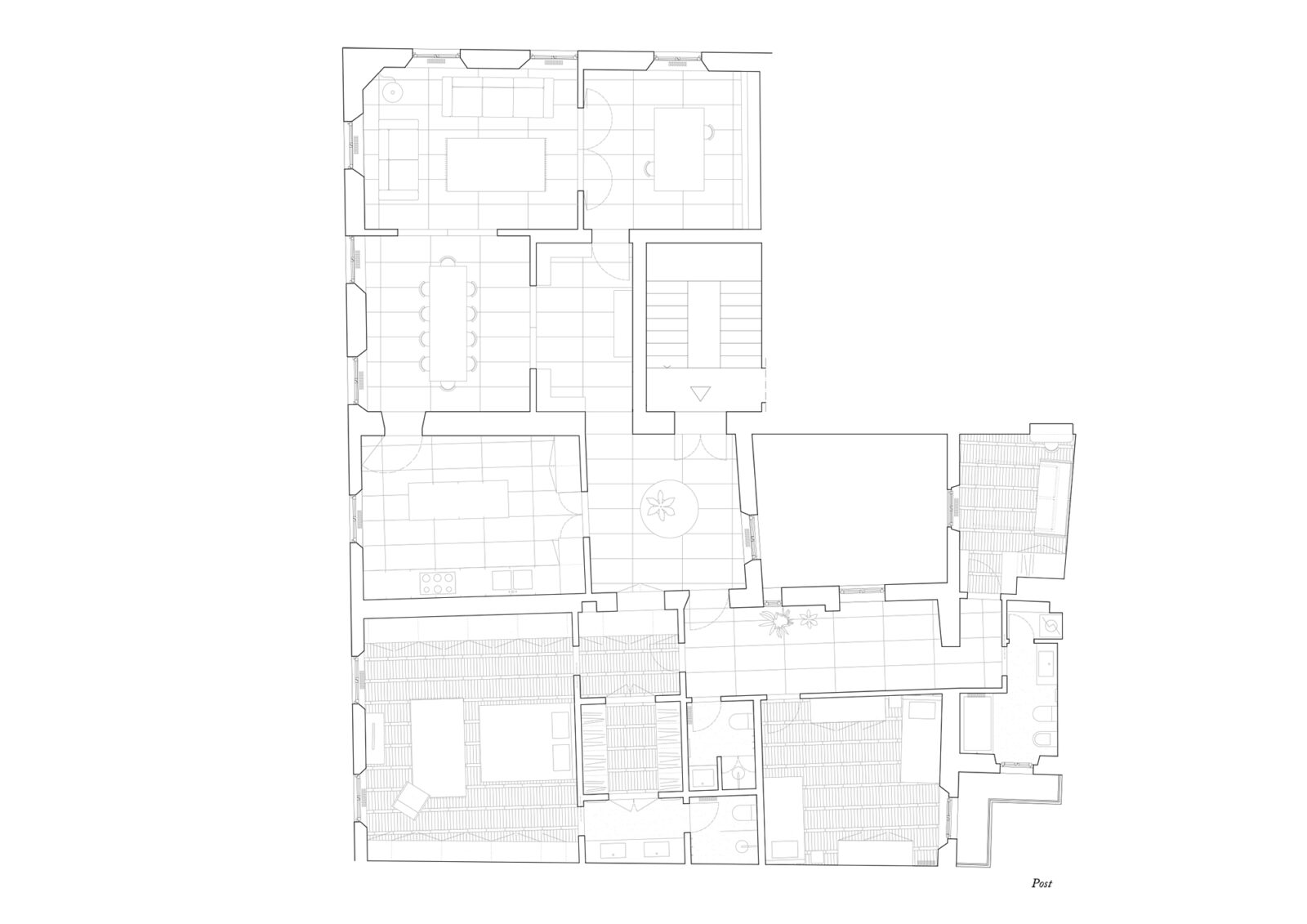
    La nuova distribuzione prevede una chiara divisione tra gli ambienti della zona giorno, posizionati nelle stanze più grandi e con le visuali migliori, e della zona notte, collocati nella parte più silenziosa e raccolta della casa. La zona giorno, attraverso l’apertura di grandi varchi nelle murature esistenti, si presenta come un continuum di spazi unificati da una ristretta palette di materiali (graniglia, travertino, legno laccato, tinteggiatura). La zona notte presenta maggiore variazione nei colori e nelle materie, con pavimenti in parquet di tek per le camere da letto e microcemento e calce in toni caldi per i bagni.

    Cliente: Privato
    Anno: 2018-2023
    Luogo: Firenze, Italia
    Dimensione: 200mq
    Progetto architettonico: AFSa (Antonio Acocella, Alessandro Falaschi, Pietro Seghi)
    Progetto strutturale: Marco Cherici
    Imprese: RAM, Filippo Biancalani, Arredo di Pietra, Falegnameria Bonaiuti, Falegnameria Frazzetta, Legnotech Firenze, WeChianti Idraulica
    Fornitori: Agglotech, Artemide, Falegnameria Vanelli, Flos, Olivari, Zucchetti
    Fotografia: Lorenzo Zandri