Rotate to exit fullscreen mode

  • Studio notarile

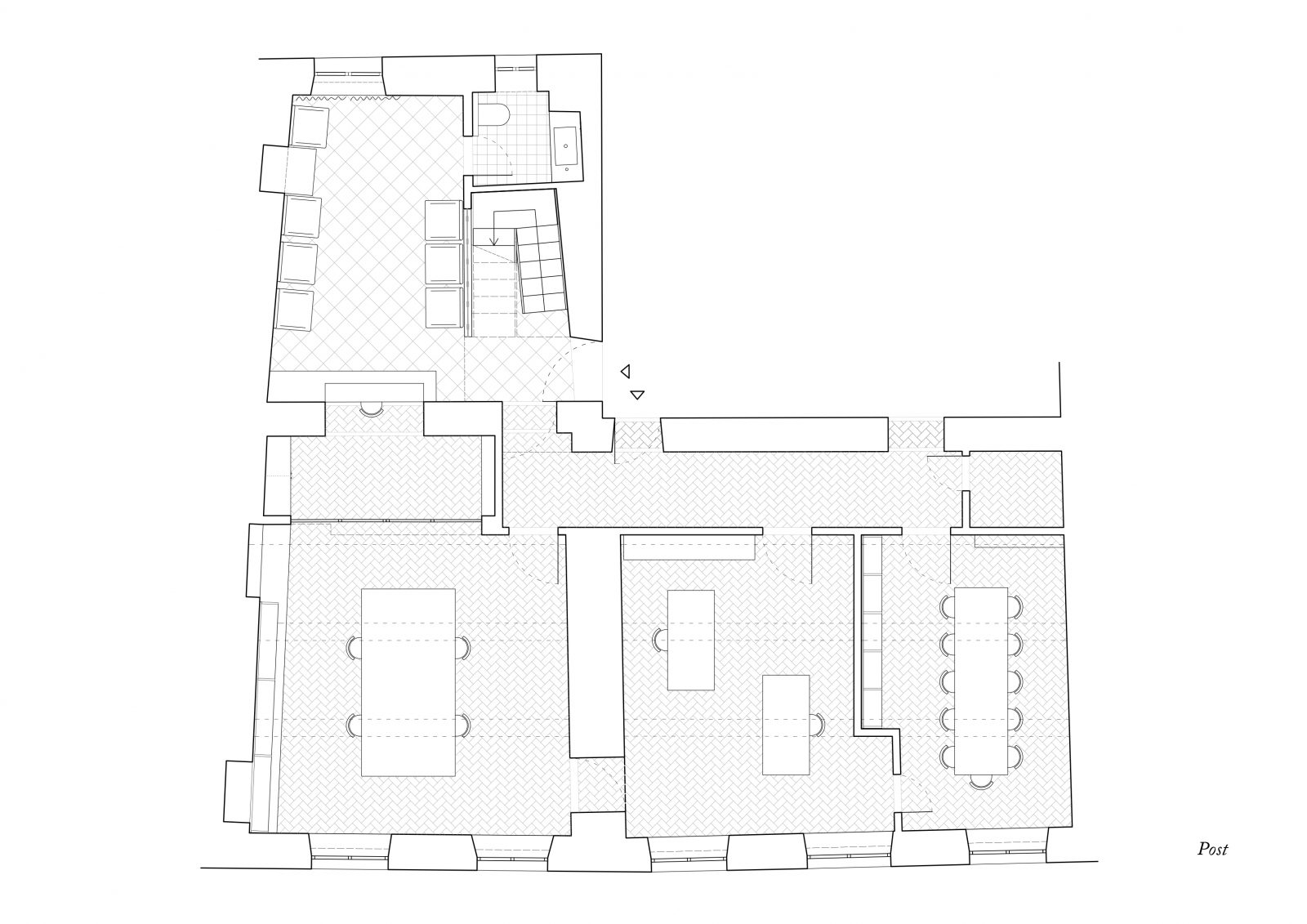
    Una serie di interventi modificano la distribuzione e l’aspetto dei locali di un affermato studio notarile con sedi a Firenze e Borgo a Buggiano.
    Nuovi arredi integrati, apparecchi illuminanti e materiali contribuiscono a rendere gli spazi più contemporanei e luminosi. Ferro verniciato, vetro opaco e legno di rovere disegnano gli ambienti rinnovati bilanciando rigore e accoglienza.

    Cliente: Privato
    Anno: 2018-2019
    Luogo: Borgo a Buggiano, Italia
    Dimensione: 100 mq
    Team: AFSa (Antonio Acocella, Alessandro Falaschi, Pietro Seghi)
    Collaboratori: Tecla Nencini
    Impresa: Idealforme 2000 s.r.l.
    Fotografia: Fabio Semeraro